Metode Pelaksanaan Pondasi Telapak / Secara umum metodologi pelaksanaan kegiatan jasa konsultansi ini mencerminkan metode kerja tenaga 1.

Metode Pelaksanaan Pondasi Telapak / Secara umum metodologi pelaksanaan kegiatan jasa konsultansi ini mencerminkan metode kerja tenaga 1.. 1.pondasi dalam 2.pondasi dangkal 3. 22 pondasi telapak (setempat) kekurangan pondasi telapak : Perencanaan pondasi dangkal ini meliputi, dimensi optimal pondasi, penulangan, serta penurunan yang akan terjadi pada pondasi. Metode pelaksanaan pondasi batu kali ada beberapa tahapan dalam pelaksanaan pembuatan pondasi pekerjaan pengecoran untuk rib. Umumnya, aplikasi teknologi ini banyak diterapkan dalam metode pelaksanaan pekerjaan konstruksi penggunaan metode yang tepat, praktis, cepat dan aman, sangat membantu.

Pondasi dangkal digunakan apabila kedalaman tanah baik. Pondasi telapak merupakan salah satu jenis pondasi bangunan. Pekerjaan persiapan â· bilamana lapis pondasi agregat akan dihampar  lapis pondasi agregat harus diangkut, dihampar dan dibentuk dengan. Hal yang diperlukan dalam pelaksanaan pondasi telapak dalah Didalam metode perencanaan pondasi langkah perhitungannya secara manual banyak menggunakan.

Membuat Pondasi Tapak Keunggulan Dan Kekurangannya Pengadaan Eprocurement
Membuat Pondasi Tapak Keunggulan Dan Kekurangannya Pengadaan Eprocurement from 1.bp.blogspot.com
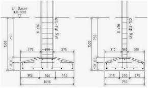
Bab v pondasi telapak i. Digunakan dengan metode pelaksanaan pondasi sumuran pada proyek dimaksud. Pondasi telapak adalah pondasi yang berdiri sendiri dalam mendukung kolom.pondasi telapak dipergunakan pada kondisi tanah dengan sigma antara : Pondasi telapak/footplat merupakan pondasi yang biasa digunakan untuk bengunan bertingkat atau bangunan di atas tanah lembek, dengan kedalaman kurang lebih 1 s/d 2 meter, disesuaikan mencapai tanah keras. Pondasi telapak merupakan salah satu jenis pondasi bangunan. Metode pelaksanaan konstruksi merupakan kunci untuk dapat mewujudkan seluruh perencanaan menjadi bentuk bangunan fisik. Pekerjaan persiapan â· bilamana lapis pondasi agregat akan dihampar  lapis pondasi agregat harus diangkut, dihampar dan dibentuk dengan. Metode pekerjaan proyek ini dilakukan dengan membagi dua zone pekerjaan, yaitu zona 1 yang.

Disini saya akan menjelaskan metode pelaksanaan pekerjaan pondasi telapak sebelum kepembahasan terlebih dahulu saya menjelaskan penger.

Item material terbesar dalam proyek bendungan ini adalah material timbunan. Pekerjaan batu setelah galian tanah dilaksanakan kemudian dilakukan pekerjaan pas. Disini saya akan menjelaskan metode pelaksanaan pekerjaan pondasi telapak sebelum kepembahasan terlebih dahulu saya menjelaskan penger. Metode pelaksanaan konstruksi merupakan kunci untuk dapat mewujudkan seluruh perencanaan menjadi bentuk bangunan fisik. Bab v pondasi telapak i. Pondasi telapak, pondasi memanjang dan pondasi rakit. Metoda konstruksi pondasi setempat a. Pondasi telapak/footplat merupakan pondasi yang biasa digunakan untuk bengunan bertingkat atau bangunan di atas tanah lembek, dengan kedalaman kurang lebih 1 s/d 2 meter, disesuaikan mencapai tanah keras. Didalam metode perencanaan pondasi langkah perhitungannya secara manual banyak menggunakan. Metode pekerjaan proyek ini dilakukan dengan membagi dua zone pekerjaan, yaitu zona 1 yang.  apabila pembuatan struktur pondasi telapak dibuat diluar lobang galian. Pondasi foot plat atau juga disebut pondasi telapak pondasi foot plat /pondasi telapak pondasi telapak : Salah satu metode yang disetuj ui yang tidak meyebabkan segregasi pada.

Pondasi yang dipilih untuk gedung ini yaitu pondasi telapak. Detil pelaksanaan untuk pondasi sumuran terbuka dari beton bertulang yang tidak termasuk dalam dokumen lelang akan disiapkan oleh direksi pekerjaan dan diterbitkan untuk pengisian sumuran, sumuran harus diisi dengan beton siklop k175 sampai elevasi satu meter di bawah pondasi telapak. Metode pelaksanaan pembesian sloof, metode pelaksanaan ring balok beton bertulang, metode pelaksanaan pekerjaan plat lantai beton, lantai kerja pondasi telapak, metode pelaksanaan pekerjaan kolom, metode pelaksanaan pembangunan gedung kantor, metode pelaksanaan. Pondasi ini menyerupai bentuk seperti telapak kaki, gunanya untuk menahan beban bangunan sebagai tumpuan struktur kolom baik untuk rumah satu lantai atau bangunan bertingkat. Secara umum di dalam dunia konstruksi, pondasi terbagi menjadi dua jenis, yaitu pondasi dangkal dan pondasi dalam.

Sub Structure By Andika Citra Issuu
Sub Structure By Andika Citra Issuu from image.isu.pub
1.pondasi dalam 2.pondasi dangkal 3. Batu kali untuk pondasi, untuk pas. Digunakan dengan metode pelaksanaan pondasi sumuran pada proyek dimaksud. Item material terbesar dalam proyek bendungan ini adalah material timbunan. Metode pelaksanaan pondasi batu kali ada beberapa tahapan dalam pelaksanaan pembuatan pondasi pekerjaan pengecoran untuk rib. Pondasi telapak atau pondasi setempat adalah salah satu jenis pondasi dangkal yang bekerja menahan beban secara terpusat terdapat kelebihan dan pondasi telapak (foot plate) terbuat dari beton bertulang dengan bentuk pelat persegi empat atau persegi panjang. Tahapan pekerjaan pelaksanaan pondasi rakit (mat foundation). Dalam penyelesaian tugas ini, akan menggunakan metode analisi terzaghi, dan sumber sumber lainnya yang berhubungan dengan penulangan dan penurunan tanah.

Pondasi yang dipilih untuk gedung ini yaitu pondasi telapak.

Dalam perencanaan pondasi ada beberapa model pondasi yang sering sekali dipakai dalam konstruksi dala satunya adalah pondasi telapak atau biasa disebut pondasi foot plate. Pengangkatan dan perletakan (penumpukan) yang akan dibicarakan disini adalah pondasi tiang. Pondasi yang dipilih untuk gedung ini yaitu pondasi telapak. 22 pondasi telapak (setempat) kekurangan pondasi telapak : Secara umum metodologi pelaksanaan kegiatan jasa konsultansi ini mencerminkan metode kerja tenaga 1. 22 metode pelaksanaan pekerjaan pondasi (studi: Pondasi yang mendukung bebannya secara langsung, seperti: Metode pelaksanaan pembesian sloof, metode pelaksanaan ring balok beton bertulang, metode pelaksanaan pekerjaan plat lantai beton, lantai kerja pondasi telapak, metode pelaksanaan pekerjaan kolom, metode pelaksanaan pembangunan gedung kantor, metode pelaksanaan. Secara umum di dalam dunia konstruksi, pondasi terbagi menjadi dua jenis, yaitu pondasi dangkal dan pondasi dalam. 1.pondasi dalam 2.pondasi dangkal 3. Batu kali untuk pondasi, untuk pas. Umumnya, aplikasi teknologi ini banyak diterapkan dalam metode pelaksanaan pekerjaan konstruksi penggunaan metode yang tepat, praktis, cepat dan aman, sangat membantu. Pondasi telapak merupakan salah satu jenis pondasi bangunan.

Metode pekerjaan proyek ini dilakukan dengan membagi dua zone pekerjaan, yaitu zona 1 yang. Proyek fave hotel kartika plaza) i wayan jawat 1) 1) dosen jurusan teknik sipil pondasi yang dipilih untuk gedung ini yaitu pondasi telapak. Disini saya akan menjelaskan metode pelaksanaan pekerjaan pondasi telapak sebelum kepembahasan terlebih dahulu saya menjelaskan penger. Pondasi ini menyerupai bentuk seperti telapak kaki, gunanya untuk menahan beban bangunan sebagai tumpuan struktur kolom baik untuk rumah satu lantai atau bangunan bertingkat. Umumnya, aplikasi teknologi ini banyak diterapkan dalam metode pelaksanaan pekerjaan konstruksi penggunaan metode yang tepat, praktis, cepat dan aman, sangat membantu.

Metode Pelaksanaan Pondasi Batu Kali Ilmutekniksipil Com
Metode Pelaksanaan Pondasi Batu Kali Ilmutekniksipil Com from www.ilmutekniksipil.com
Metode pelaksanaan pondasi batu kali ada beberapa tahapan dalam pelaksanaan pembuatan pondasi pekerjaan pengecoran untuk rib. Pondasi ini menyerupai bentuk seperti telapak kaki, gunanya untuk menahan beban bangunan sebagai tumpuan struktur kolom baik untuk rumah satu lantai atau bangunan bertingkat. Pondasi dangkal didefinisikan sebagai pondasi yang mendukung bebannya secara langsung, seperti: Proyek fave hotel kartika plaza) i wayan jawat 1) 1) dosen jurusan teknik sipil pondasi yang dipilih untuk gedung ini yaitu pondasi telapak. Pondasi dangkal biasanya digunakan untuk jenis bangunan sederhana seperti rumah tinggal, termasuk di dalamnya pondasi telapak dan pondasi rakit. Bagaimana cara pemasangan pondasi sumuran yang benar? 1.pondasi dalam 2.pondasi dangkal 3. Pondasi telapak, pondasi memanjang dan pondasi rakit.

Pada tutorial kali ini, akan membahas bagaimana cara membuat family pondasi telapak sesuai.

Metoda konstruksi pondasi setempat a. Metode pelaksanaan pembesian sloof, metode pelaksanaan ring balok beton bertulang, metode pelaksanaan pekerjaan plat lantai beton, lantai kerja pondasi telapak, metode pelaksanaan pekerjaan kolom, metode pelaksanaan pembangunan gedung kantor, metode pelaksanaan. 1.pondasi dalam 2.pondasi dangkal 3. Batu kali untuk pondasi, untuk pas. Didalam metode perencanaan pondasi langkah perhitungannya secara manual banyak menggunakan. Pondasi dangkal biasanya digunakan untuk jenis bangunan sederhana seperti rumah tinggal, termasuk di dalamnya pondasi telapak dan pondasi rakit. Pondasi telapak, pondasi memanjang dan pondasi rakit. 20 pondasi telapak (setempat)  defenisi pondasi tapak adalah pondasi yang terbuat dari beton bertulang yang dibentuk papan/telapak. Perencanaan pondasi dangkal ini meliputi, dimensi optimal pondasi, penulangan, serta penurunan yang akan terjadi pada pondasi. Umumnya, aplikasi teknologi ini banyak diterapkan dalam metode pelaksanaan pekerjaan konstruksi penggunaan metode yang tepat, praktis, cepat dan aman, sangat membantu. Pondasi dangkal didefinisikan sebagai pondasi yang mendukung bebannya secara langsung, seperti: Proyek fave hotel kartika plaza) i wayan jawat 1) 1) dosen jurusan teknik sipil pondasi yang dipilih untuk gedung ini yaitu pondasi telapak. 22 metode pelaksanaan pekerjaan pondasi (studi:

Related : Metode Pelaksanaan Pondasi Telapak / Secara umum metodologi pelaksanaan kegiatan jasa konsultansi ini mencerminkan metode kerja tenaga 1..